The Langham, Diriyah, KSA
Our Services
DCE was appointed to conduct a traffic impact study for The Langham in Diriyah, KSA. The proposed development is a hotel located in Diriyah Gate Phase 2. The primary purpose of the TIS was to assess the adequacy of the internal circulation, parking layout, drop-off areas and tie-ins with the external network. Additionally, the potential impact of the proposed development on the surrounding transportation network was assessed, and to determine if there was any impact on the performance of the external junctions and develop appropriate measures to mitigate these impacts, if required.
Interim Road Connections to Resort Core, Qiddiya, Kingdom of South Arabia
Our Services
DCE was appointed to carry out the Concept Design Stage (Stage 0) RSA for Interim Road Connections to Resort Core, Qiddiya. Qiddiya is a unique large-scale development providing solutions to the pressing challenges of sustainable metropolitan growth and economic transformation processes within the Kingdom of Saudi Arabia The Qiddiya Interim Roads connects to Highway 505 to the south of the scheme and to other Qiddiya related roads to the east and north of the scheme. There is 1 3-arm signalised intersection in this scheme. The roads are 2-lane/3-lane dual carriageway roads with 3.65m lane widths. The land use is largely residential with 3 commercial plots, 3 mosques, 4 open spaces and 14 government plots.
Al Shyoukh Port, Doha, Qatar
Our Services
The Al Shyoukh Port project, on the Corniche, where Duffy Consultant Enterprise Qatar recently provided traffic consultancy services. #project #qatar #traffic
Traffic Study for Wellness Resort, Doha, Qatar
Our Services
DCE was appointed as a traffic consultant to perform a traffic study on a new Wellness Report at prestigious location in Doha, Qatar. DCE's role was to provide feedback and assistance in relation all parking, circulation and general traffic requirements for the project. This included reviewing the consultants drawings for standard compliance, untertaking swept path analayis for vehicular movements as well as discussing proposed options to improve the layout and circulation where required.
Road Safety Audit for Roads and Infrastructure in Southwest of Al Wukair
Our Services
DCE was appointed to carry out the Construction Stage (Stage 3) RSA for Roads and Infrastructure in Southwest of Al Wukair. The length of the Roads in the project is approximately 20km including road corridors of 20m, 40m and Sikka Alleyways. The roads are classified as per QHDM 2015.” There are 9 roundabouts provided within the scheme. There are 2 types of roads in the scheme: Two-way single carriageways (local roads) with lane widths of 3.3m and posted speeds of 50kph. These roads have a 20m right of way.1-lane dual carriageways (with flush median) with lane widths of 3.3m and posted speeds of 50kph (collector roads). These roads have a 40m right of way. The land use is largely residential with 3 commercial plots, 3 mosques, 4 open spaces and 14 government plots.
Road Safety Audit for Haii 6, Jazan, Kingdom of Saudi Arabia
Our Services
DCE were appointed to complete the Preliminary Design (Stage 1) Audit for in Haii 6 in Jazan, Kingdom of Saudi Arabia. The proposed development is a mixed used development in the southwestern area of KSA. The project site is located approximately 80km north of Jazan City and to the east of the Red Sea. The area is currently undeveloped. The land use in Haii 6 Phase 1 has residential, schools, commercial and recreation.
There are 3 signalised intersections on Road 6 (Package 1). There are several right-in/right-out and priority junctions, 1 roundabout and 3 signalised intersections have been proposed as part of Haii 6 Phase 1 (Package 2).
The Audit Team have been informed by the consultant that the posted speed limit is 50kph (Design speed is 60kph) for all roads in the scheme.
Road Safety Audit for Roads Improvement Works in Southern Qatar Area
Our Services
DCE was appointed to carry out the Construction Stage (Stage 4) RSA for Roads Improvement Works in Southern Qatar Area. The scope for this RSA Report covers Road 1 and Road 2. The scheme consists of two 2-lane dual carriageways. Road 1 is located to the north of Logistics Village (with accesses connecting to GWC warehouses). Road 2 is located to the south of Logistics Village (connecting to local access roads). Both Road 1 and Road 2 tie-in to roundabouts at either end of the scheme. The posted speed is 80kph for both roads.
Traffic Impact Assessment Report for Haii 6, Jazan, Kingdom of Saudi Arabia
Our Services
DCE was appointed to conduct a Traffic Impact Assessment for Haii 6, Jazan, Kindom of Saudi Arabia. The primary purpose of a traffic impact assessment is to identify the impacts of the proposed development on the surrounding transportation network, and to determine appropriate measures to mitigate these impacts, if any. The severity of the traffic impact depends on the size and characteristics of the proposed development as well as the design and operational characteristics of the surrounding transportation network. The following is a brief description of the work scope and tasks required to carry out the TIA study: Analysis of existing conditions: this is essentially a summary of current conditions on the major streets and junctions surrounding the proposed development as well as the internal layout also. Impact analysis: determination of the traffic impact on the surrounding network due to the proposed development for opening year and horizon year. Mitigation plan: summary of proposed measures to mitigate development traffic impact and any necessary improvements required on the surrounding network.
Road Safety Audit for Community Area Haii 4, Jazan, Kingdom of Saudi Arabia
Our Services
DCE were appointed to complete the Preliminary Design (Stage 1) Audit for in Haii 4 in Jazan, Kingdom of Saudi Arabia. The proposed development is a mixed used development in the southwestern area of KSA. The project site is located approximately 80km north of Jazan City and to the east of the Red Sea. The area is currently undeveloped. The land use in Haii 4 Phase 1 has residential, offices, schools, commercial, parks and a bus station.
The Audit Team have been informed by the consultant that the posted speed limit is 50kph (Design speed is 60kph) for all roads in the scheme.
Road Safety Audit for Roads and Infrastructure in South of Al Meshaf
Our Services
DCE was appointed to carry out the Construction Stage (Stage 4) RSA for Roads and Infrastructure in South of Al Meshaf. This project is located in the Al Meshaf/Al Wukair area, to the southwest side of Al Wakrah. The project is split into several ‘Zones’. The scope of this RSA covers Zone 2 only. The overall project area is substantially residential in nature. Zone 2 (Muaither Street) is a two dual carriageway road, with service roads, travelling north-south between Zone 1 and Zone 3. The posted speed in Zone 2 is 50kph (on the mainline and service roads). There are 2 signalised intersections in Zone 2 (on Muaither Street) and 1 signalised midblock pedestrian crossing. Footpaths are provided throughout the scheme, and parking is provided on the service roads. There are 3 bus stops in the scheme (1 on northbound service road, 1 on southbound service road and 1 on the southbound mainline).
Road Safety Audit for South of Greater Doha Zones 90 to 95 Phase 7
Our Services
DCE was appointed to carry out the Construction Stage (Stage 4) RSA for South of Greater Doha Zones 90 to 95 Phase 7. The scheme is a 2-lane dual carriageway. There are 2 roundabouts and one RIRO junction. The scheme provides access to the GWC warehouses and ties in to an existing roundabout in the south. The posted speed is 60kph for the scheme and the lane widths are 3.65m.
Road Safety Audit for Diyar Al Muharraq Asset 11 Phase 2A, Kingdom of Bahrain
Our Services
DCE was appointed to carry out the Construction Stage (Stage 3) RSA for Al Muharraq Asset 11 Phase 2A, Kingdom of Bahrain. There are two separate areas located in proximity to each other included as part of this scheme. The first area is detailed as followed: This area includes the north arm of the signalised intersection (Junction 05), as well as 3 dual carriageways and 2 access roads located on Diyar Al-Muharraq Island, in the Kingdom of Bahrain. There are existing residential townhouses in the southern side of this area. The northern side is currently undeveloped however, apartments and retail are to be constructed in the future. The ROWs vary from 15m to 45m for the roads in this area and the lane widths are 3.75m. The adjacent plots are all residential. The majority of the plots are currently vacant. There are 3 roundabouts and 1 signalised intersection in this area. The posted speed limit is 30 kph (design speed is 30kph) on the 2-way single carriageway access roads and the posted speeds are 50-70kph on the dual carriageway collector/distributor roads. The second area is detailed as followed: This area is a single lane U-turn on Road MC10. The U-turn is from the eastbound carriageway to the westbound carriageway. A diverge lane is provided on approach to the U-turn A freeflow merge lane is provided on the exit from the U-turn
Traffic Study Report for North Feild Expansion Project, Ras Laffan Industrial City (RLIC)
Our Services
DCE were appointed to conduct a Traffic Study Report for Project Related Traffic for Labour Camp Area within Ras Laffan Industrial City (RLIC) as part of the North Field Expansion project. For the construction, there will be labour transport movements between the labour camp areas and the project locations, as required. Additionally, there will be labour traffic for the neighbouring EPC-1, EPC-3, EPC-4 and LGV camps. These expected movements are considered as part of this traffic impact assessment. The purpose of this report is to assess the levels of service achieved at the accesses/junctions as a result of the construction related labour traffic to the road network in proximity to the labour camp area. This will be done by analysing the estimated traffic volumes and proposed routes to establish if the routing is sufficient or if alternative routes should be considered.
Traffic Impact Study for Aspire School, Al Waab
Our Services
DCE was appointed to conduct a traffic impact study for Aspire School. The proposed development is a school located in Al Waab, Doha, Qatar . The land use categories ‘Class 315: Private School’ and ‘Class 321: Institute of Higher Education’ (from the Dubai Trip Generation and Parking Rates Manual 2013), were utilized as the most appropriate categories for the development. The primary purpose of the TIS is to identify the impacts of the proposed development on the surrounding transportation network, and to determine appropriate measures to mitigate these impacts, if required.
Road Safety Audit for Khalifa Avenue
Our Services
DCE were appointed to carry out a Construction Stage (Stage 4) Road Safety Audit on a scheme known as ‘’Khalifa Avenue’’, carried out on ‘Dukhan Road East Contract’ project. This RSA is for the permanent works. Works include the construction of approximately 7.5 km of dual carriageway road as the mainline of Dukhan Road East and 3.2km of Al Gharrafa Road. The project site is located to the west side of Doha City. This scheme involves the westbound and eastbound mainline and frontage roads of Khalife Avenue. It also includes the cycle tracks and footpaths adjacent to the carriageways. It is approximately 7.5km long and stretches from Al Wajba Interchange to Tilted Interchange. There are 4 interchanges included in as part of this scheme. There are two mid-block pedestrian crossing in the scheme. One is located outside the Metro station to the east of Qatar Academy Interchange, and the other is outside the Convention Centre. These crossing are circa 40m wide. They cross the frontage roads (2 lanes) and maintain (4 lanes) and are controlled by traffic signals.
Road Safety Audit for North of Semaisma
Our Services
DCE was appointed to carry out the Concept Design (Stage 1) and Preliminary Design (Stage 2) RSAs for North of Semaisma. The project extends over an approximate area of 2100 hectares (ha)The project area is situated between 3 interchanges on Al Khor Expressway: Semaimsa interchange IC-G to the south, Tenbek interchange IC-G1 in the middle and the Al Khor Interchange IC-H to the north. The land use is mainly residential but there are commercial avenues, mosques, government buildings, parks, schools etc. as well as a special use area for hotels, entertainment etc for the PEO beach front area. There are numerous signalised intersections and roundabouts within the project. The posted speed limit ranges from 50kph on the local/collector roads (with 3.3m lanes) to 80kph on the arterial roads (with 3.65m lanes).
Traffic Diversion Plan for Main Boulevard Underpass, The Pearl, Qatar
Our Services
DCE prepared Traffic Diversion Plan design drawings for road closures on the Main Boulevard Underpass, The Pearl to assist the contractor in the installation works the existing bridge overhead. The TDPs involved lane closures for crane lifting services.
Traffic Diversion Plan for Tower 31, Porto Arabia, The Pearl, Qatar
Our Services
DCE prepared Traffic Diversion Plan design drawings for road closures in Porto Arabia, The Pearl to assist the contractor in the installation works the existing Tower 31 development. The TDPs involved lane closures for crane lifting services.
Traffic Diversion Plan for Tower 6, Porto Arabia, The Pearl, Qatar
Our Services
DCE prepared Traffic Diversion Plan design drawings for road closures in Porto Arabia, The Pearl to assist the contractor in the installation works the existing Tower 6 development. The TDPs involved lane closures for crane lifting services.
Traffic Diversion Plan for Lulu Hypermarket, Giardino Mall, The Pearl, Qatar
Our Services
DCE prepared Traffic Diversion Plan design drawings for road closures at Giardino Mall, The Pearl to assist the contractor in the installation works Lulu Hypermarket. The TDPs involved lane closures for crane lifting services.
Traffic Diversion Plan for Madam Sumaia Villa, The Pearl, Qatar
Our Services
DCE prepared Traffic Diversion Plan design drawings for road closures in The Pearl to assist the contractor in the installation works a private development. The TDPs involved lane closures for crane lifting and concrete pumping services.
Traffic Diversion Plan for Tower 23, Porto Arabia, The Pearl, Qatar
Our Services
DCE prepared Traffic Diversion Plan design drawings for road closures in Porto Arabia, The Pearl to assist the contractor in the installation works the existing Tower 23 development. The TDPs involved lane closures for crane lifting and concrete pumping services.
Traffic Diversion Plan for Plot AP01A and AP01B, The Pearl, Qatar
Our Services
DCE prepared Traffic Diversion Plan design drawings for road closures in The Pearl to assist the contractor in the completion of the multistory residential development. The TDPs involved lane closures for crane lifting and concrete pumping services.
Traffic Diversion Plan for Plot 21, 24 and 54, Giardino Village, The Pearl, Qatar
Our Services
DCE prepared Traffic Diversion Plan design drawings for road closures in Giardino Village, The Pearl to assist the contractor in the completion of the multistory residential development. The TDPs involved lane closures and partial intersection closures for crane lifting and concrete pumping services in several locations.
Traffic Diversion Plan for Plot 10, Giardino Village, The Pearl, Qatar
Our Services
DCE prepared Traffic Diversion Plan design drawings for road closures in Giardino Village, The Pearl to assist the contractor in the completion of the multistory residential development. The TDPs involved lane closures for crane lifting and concrete pumping services.
Traffic Impact Assessment for Construction of Junction South of Diplomatic Area in Wadi Al Banat
Our Services
DCE was appointed to conduct a Traffic Impact Assessment for Construction of Junction South of Diplomatic Area in Wadi Al Banat. This project consists of road works for the construction of a junction to the south of the diplomatic area in Wadi Al Banat. The contractor needs to install a temporary traffic diversion to create space for the workzones to complete the works. There is one signalised intersection affected by this proposed diversion at the Junction between Wadi Al Banat Road and Al Kheesa Road. Wadi Al Banat Road is a dual carriageway with 3 lanes in each direction however the northern arm is not currently open to through traffic and Al Kheesa Road is a dual carriageway with 3 lanes in each direction. The purpose of this report is to assess the levels of service achieved as a result of this temporary traffic diversion layout. This will be done by utilising traffic models to compare the levels of service for existing layout against the proposed temporary traffic diversion.
Traffic Impact Assessment for Al Abwab Street
Our Services
DCE were appointed to conduct a Traffic Impact Assessment for Al Abwab Street. The purpose of the report is to assess if the levels of service achieved on Al Abwab Street, as a result of realigning the existing road layout, is considered acceptable from an operational point of view. This will be done by comparing the levels of service for existing layout against the proposed layout. This involved capacity analysis modelling.
Traffic Diversion Plan for Landscape Works and Street lights in Lusail
Our Services
DCE prepared several Traffic Diversion Plan design drawings for roads and intersections in Lusail to assist UCC/Palmera in the completion of landscaping and street lighting works. The TDPs involved lane closures and partial intersection closures in several locations.
Road Safety Audit for Lusail Plaza Infrastructure and LRT Station
Our Services
DCE were hired by KEO to undertake a concept design (Stage 1) RSA for Lusail Plaza Infrastructure, LRT Station, Public Car Park and Landscaping. As part of the development of Lusail Boulevard there are 4 large towers being constructed at the eastern end of the boulevard. These towers are known as Lusail Plaza. This audit covers the following in relation to Lusail Plaza: 8 Access points to/from Lusail Plaza. 8 locations with changes in design on the gyratory serving Lusail Plaza. 2 proposed mitigation measures at junctions FH7 and P12, adjacent to Lusail Plaza. All 8 access points facilitate entry and exit of vehicles at Lusail Plaza. Lusail LRT interphases directly with Accesses 1, 2, 3 and 4. The gyratory road also allows for entry and exit of vehicles at each tower at Lusail Plaza. Additionally the gyratory road has U-turn facilities provided at either end (2 total). The U-turns are signalised.
Traffic Impact Assessment on Al Khiesa Road
Our Services
DCE was appointed by Al Darwish Engineering to conduct a traffic impact assessment for a temporary closure on Al Khiesa Road to facilitate ultities works in the carriageway. This involved modelling multiple junctions and assessing different routing options as well as changing the lane configuration at some junctions to improve traffic flow for the temporary traffic diversion.
Road Safety Audit for Pedestrian Bridges
Our Services
DCE were tasked by FDP to undertaked concept design and detailed design RSAs for 3 pedestrian bridges in Doha. Ashghal, the Public Works Authority, intend to deliver pedestrian bridges at many locations throughout Doha as determined by the Qatar Pedestrian Crossings Master Plan (QPCMP). The RSAs will focus on the interaction between the bridge and existing/proposed road layout below, with a strong emphasis on NMU provision surrounding the bridge landing areas. For the Pedestrian Bridge located on Al Istiqlal Street near West Bay Petrol Station, the bridge will provided pedestrian connectivity between the Residential Complex to the west of Al Istiqlal Street and many schools/parks/shops on the eastern side of Al Istiqlal Street. For the Pedestrian Bridge located on Najma Street near Hamid Bin Khalifa Stadium, the bridge will provided pedestrian connectivity between the east and west side of Najma Street. For the Pedestrian Bridge located on Al Furousiya Street near Aspire Park, the bridge will provided pedestrian connectivity between the Residential Complex to the west of Al Furousiya Street and Aspire Park.
Road Safety Audit for Wadi Al Buhair Phase 1 & 2, Bahrain
Our Services
DCE were hired to conduct preliminary design and detailed design road safety audits for Wadi Al Buhair Phase 1 & 2 in Bahrain. Wadi Al Buhair is located in the Southern Governorate of Bahrain in the vicinity of the Riffa and Sanad districts. The site is about 600m to the east side of the Bahrain National Stadium. It is confined by the 16th December Avenue on the north side and Al Esteglal Highway to the north-east and eastern side. Phase 1 consists of a combination of single carriageway local roads and 2-lane dual carriageways. The posted speeds on the local roads are 30kph and 50kph. The posted speed on the dual carriageways is 60kph. There is a large roundabout located in the middle of the scheme and 3 signalised intersections to the south east of the scheme. Phase 2 consists mainly of single carriageway local roads with a posted speed limits of 30kph and 50kph. There are 4 roundabouts located within this phase. All other junctions are priority junctions. The landuse is mostly residential villas with one school located in the north of the site.
Traffic Diversion Plan for Gewan Island Bridge Installation
Our Services
DCE designed the Traffic Diversion Plan for Porr/Midmac JV, to facilitate the installation of a cable stayed bridge as part of the Gewan Island Project. The 250-metre long bridge, which rests on two pylons 43 metres above The Pearl-Qatar’s Boulevard, will connect the Lusail Expressway and The Pearl-Qatar’s Boulevard to Gewan Island. The Traffic Diversion consisted for 2 phases of contraflow traffic while maintaining all movements.
Traffic Study for Cargo Transport to Ras Laffan
Our Services
DCE was appointed by MSI to conduct a traffic study for the movement of cargo from ports of entry in Qatar (Air and Sea) to Ras Laffan Industrial City as well as internal traffic movements within Ras Laffan to set down areas and project sites. The purpose of the study was to assess the impact of the cargo movement on the traffic within Ras Laffan, as well as assessing the viability of the proposed routes, inside and outside of Ras Laffan.
Parking and Circulation Review for PPP Schools
Our Services
DCE was hired by Cundall to complete parking and circulation design reviews for 14 schools as part of a PPP scheme in Qatar. As part of the study, design standards were checked, layout functionality was assessed and AutoTrack analysis was undertaken with drawings and reports were produced for each school.
Road Safety Audit for Olympic Cycle Track
Our Services
DCE was appointed by Tekfen to complete the Stage 4 (Construction Stage) Road Safety Audit for the Olympic Cycle Track. The dedicated 'fast' cycle track is 33km stretching from Doha to Al Khor. The track is 7m wide and is designed for speeds of up to 50kph. The scope of the audit specifically covered the cycle track only in a very unique Audit, highlighting DCE's ability to provide high-quality services in even these distinctive and special locations.
Traffic Diversion Plan for Mesaimeer Data Centre
Our Services
DCE prepared a Temporary Traffic Diversion Plan design drawing, for QDC. The TDP involved diverting traffic from the existing service road onto the hard shoulder on the mainline over a distance of 150m. This gave the contractor a safe space on the service road to install a large crane need to construct the new Data Center.
Traffic Diversion Plan for Operation and Maintenance of Road Tunnels Framework- RT-002
Our Services
DCE prepared Traffic Diversion Plans for short term lane closures for our client, Aktor, in order for them to be able execute preventive maintenance activity in tunnels throughout Doha. The tunnels were located in Al Muntazah, Al Wakra and Lusail. The total number of lane closure required was circa 50.
Traffic Diversion Plan for DS140 Package 4 Roads and Infrastructure in Semaisma
Our Services
DCE prepared Traffic Diversion Plan design drawings, for Al Jaber, for all 6 zones of DS140 where the contractor had to install sewer pipelines via open cut and micro tunneling.
Road Safety Audit for Qetaifan Island North
Our Services
DCE were appointed by Atkins to undertake concept design (Stage 1) and detailed design (Stage 3) audits for Qetaifan Island North.
The Qetaifan Island North (QIN) is located around 150m off the coast of Lusail within the southern part of Al Daayen Municipality and are surrounded by the shallow waters of the Arabian Gulf. The islands, along with the wider Lusail City, are located within 20km of several other major landmark developments in Doha including Qatar Entertainment City, Katara, The Pearl and West Bay.
QIN is a key element of Lusail City’s expansion project, a comprehensive master plan development and is envisioned to be a high-end mixed-use island community with primary focus on promoting its unique destination for leisure, retail and entertainment, cultural experience and waterfront activities.
Traffic Diversion Plan for Qatar Pedestrian Crossing Masterplan
Our Services
DCE prepared multiple Traffic Diversion Plan design drawings for Porr, for the installation of pedestrian bridges in Doha.
Traffic Impact Study for City Centre Frontage Area
Our Services
DCE was appointed by GHD to conduct a Traffic Impact Study for the new frontage area, as part of the City Centre Mall Expansion. the frontage area consisted of new food and beverage outlets as well as a changing the layout of the circulation to and from parking areas. The study included a development plan review and queuing analysis.
Road Safety Audit for Connecting Lusail City with Expressway Road Network
Our Services
DCE were tasked by KEO to undertake a concept design (Stage 1) RSA for connecting Lusal City with the Expressway Road Network. The concept design study covers the complete/partial sections of Tarfa Road, Al-Ebb Road, Al Kheesa Road, Arab League Street, Wadi Al Bannat Street and section of Lusail Expressway. These links to Lusail city which is part of the overall planning of the north of Doha, moreover the whole new road network will efficiently connect Lusail City with Shamal Road, Umm Salal Area, Al Khisah Area and Al Duhail Area. The objective of the project is to prepare a concept design layout for all options and to identify the required land acquisition to achieve the satisfactory traffic performance in accordance with the transport study guidelines and requirements of Land Transport Planning Department (LTPD) in MOTC.
Road Safety Audit for Central Doha and Corniche Beautification Project (PA 2019 C 079 I)
Our Services
DCE were hired by Parsons to conduct the detailed design (Stage 3) road safety audits for various zones in the Central Doha and Corniche Beautification Project (PA 2019 C 079 I)’. The geographical scope of this project includes the areas between the Corniche Street and the third Ring Road. The focus will be on redesigning and developing the streets within Doha Central District (the heart of the Old City which includes streets such as the Corniche Road, the Musheireb Road and the National Museum and other local streets) and is proposed to be completed before 2022, giving priority to pedestrians, cyclists and public transport at the expense of private vehicles. According to the objectives of the project, the redesign of the roads within the scope of the project may not be commensurate with the technical standards of road design and traffic studies approved by Land Transport Planning Department of the Ministry of Transport and Communications, including but not limited to: QHDM 2015, Qatar Traffic Control Manual, (QTCM 2015) Qatar’s Guidelines and procedures for Transport Studies, Qatar’s Guide for Pedestrian Crossroads, Qatar’s Transport Plan, etc. Additionally, a large amount of existing on-street parking will be removed and parking garages will be provided throughout the project to cater for the parking demand in the area.
Traffic Diversion Plan Design for D-Line TSE PS & Transmission Main
Our Services
DCE were prepared traffic diversion plan design drawings for Al Jaber, to be installed at 11 locations in order to facilitate the construction of the D Line TSE Pipeline.
Road Safety Audit for Road A3 and Road A5, Lusail city
Our Services
DCE were hired by WSP to carry out construction stage (Stage 4) RSAs for Lusail City. The scope of this Road Safety Audit covers two roads within the city of Lusail in Qatar. These are Road A3 and Road A5. Road A3 – this road is a 2 lane dual carriageway that is 3km in length. A tunnel is provided in the centre of this road that travels under the Lusail Plaza Project. The posted speed limit is 60kph. A tram line is present in the median. Street lighting is provided throughout the road. Pedestrian footpaths and cycle paths are part of the design but were not constructed at the time of this RSA. There are six signalised intersections provided along this road. The southern end of the road connects to Junction 10 on Road A5. The northern end of the road connects to Junction 3 on Road A2. Road A5 – this road is a 3 lane dual carriageway that is 1.8km in length. The posted speed limit is 60kph at the eastern side and then increases to 70kph on the approach to Al Khor Expressway. Temporary street lighting has been provided. Pedestrian footpaths and cycle paths are part of the design but were not constructed at the time of this RSA. There are three signalised intersections provided along this road. The western end of the road has an underpass (at Junction 10) that connects to the Al Khor Expressway. The eastern end of the road connects to Junction 9 on Road A1-1. The roads to the south of Junction 10 are still under construction and are therefore not included within the scope of this RSA.
Road Safety Audit for Villamar and Harbour Row Bahrain
Our Services
DCE were hired to undertake preliminary design and detailed design RSAs for Villamar Highway and Harbour Row Access Roads in Bahrain. Villamar and Harbour ROW Developments consist of residential buildings, commercial buildings and hotels. The project is in an existing development with existing infrastructure. The project is located off the existing Bahrain Bay Road. This is a three-lane dual carriageway, which requires a temporary access solution for the initial opening phase of Tower B, and a permanent solution to facilitate the projected traffic flows from the full three tower development.
Road Safety Audit for Lusail City
Our Services
DCE were hired by WSP to carry out construction stage (Stage 4) RSAs for Lusail City. The scope of this Road Safety Audit covers four sections within the city of Lusail in Qatar. These four sections are Road A1, Road A2, CP01 and CP02. CP5B Road A1 and A2 – these are three lane dual carriageways with a posted speed of 60kph. Street lighting columns are provided in the median, and separate pedestrian and cycle paths are provided in the verges. There are several large signalised intersections provided along these roads. The western ends of both roads connects to the Al Khor Expressway project. The eastern ends connects to other projects in Lusail. CP01 (Marina District) – this area consists of a network of dual carriageway roads that connect at signalised intersections. The posted speed limit is 50kph at most locations. The landuse is a mixture of residential, hotels, commercial and government buildings. Street lighting and NMU facilities are provided throughout the area. CP02 (Fox Hills North and South) – this is a residential area consisting of low speed single carriageway roads. The majority of the buildings are built and uninhabited. The majority of the junctions are simple priority junctions and mini-roundabouts. There is one spine road, which is a two-lane dual carriageway, that runs north south through CP02 (Road E15) and there are six signalised intersections on this road.
Road Safety Audit for East Industrial Road (P017 C2)
Our Services
DCE were hired by Tekfen to undertake detailed design (Stage 3) and pre-opening (Stage 4) road safety audits for the upgrading of East Industrial Road. These audits included temporary traffic diversions and beneficial-use openings. P017 C2 Construction of East Industrial Road between Al Muntazah Street and West Corridor is a 2.4km long expressway. The northern end of the road ties into an underpass and signalised intersection that connects to East Industrial Street. The southern end of the road ties into an interchange on G-Ring Road and gives direct access to the New Orbital Highway.
Road Safety Audit for Mall of Qatar Phase 2A
Our Services
DCE were hired by KEO to undertake the concept design (Stage 1) Road Safety Audit for the Mall of Qatar Phase 2A. The proposed development, Grand Zone, is Phase 2 of the Mall of Qatar. The proposed site is located to the east of the existing Mall of Qatar development. Phase 2 will be constructed in two phases. Phase 2A consists of a residential area and a school. The three main roads in proximity to the Grand Zone are Dukhan Highway, Orbital Expressway and Celebration Road.
Road Safety Audit for A-Ring Road Interim Improvement Scheme
Our Services
DCE were hired by Boom to carry our Construction Stage (Stage 4) RSAs for temporary traffic management schemes to facilitate the construction works for A-Ring Road Interim Improvement Scheme. The A-Ring Road Improvement scheme involves the upgrading of the existing road network and providing 4 lanes in each direct.
Road Safety Audit for Al Rayyan Stadium
Our Services
DCE were hired by Larsen & Toubro to carry out the detailed design (Stage 3) RSA for Al Rayyan Stadium and Precinct. Al Rayyan stadium will be one of the stadiums hosting the prestigious FIFA World Cup matches to be held in Qatar in 2022. Al Rayyan stadium and precinct will become an important land mark as the facilities and the precinct in general will be show cased to the world audience. Roads within the Precinct are minimised and shared pedestrian/ vehicle surfaces are maximised to give priority to pedestrians and to emphasise the importance of walking. This creates a university campus atmosphere, allowing visitors to freely wander within the Precinct in comfort and safety to establish its use as an important civic space as well as a centre for sporting excellence. The proposed Al Rayyan Stadium is located to the west of Doha City, along Dukhan Highway. Mall of Qatar is located to the east of the stadium.
Traffic Impact Study for Private Hospital, Doha
Our Services
DCE were appointed by Nozul Real Estate to conduct a TIS (Traffic Impact Study) for the medical facility at Airport Road, Doha, Qatar. The proposed G+2 development is a Private Hospital. A TIS was completed previously for same plot, however a change in land use from commercial to medical seen a requirement for a new TIS to be completed. A detailed development plan review process was carried out to check access width, parking layout, internal / external vehicle and pedestrian circulation, sight distance, road safety, drop off/pick up and service vehicle provisions. Following TIS guidelines developed by the Ministry of Transport and Communications (MOTC), traffic was generated, distributed and assigned to the road network using PTV VISUM. A traffic impact assessment was done at key access roads and neighbouring junctions using PTV VISSIM SIDRA and Synchro software.
Road Safety Audit for Gewan Island
Our Services
DCE were tasked by Dar Al Handasah to undertake Preliminary Design (Stage 2) and Detailed Design (Stage 3) RSAs for Gewan Island. The scheme is a mixed use development located directly north of The Pearl. The project will accommodate circa 3000 residents which will be housed in circa 611 units. These will include 558 apartments, 26 waterfront villas, 21 beach front villas and 6 island villas in addition to 21,000 square meters of retail space and number of residential buildings.
Road Safety Audit for Qatar Rail Metro Stations
Our Services
DCE were appointed by Gannet Fleming to complete the Detailed Design (Stage 3) Audits for the new Qatar Rail Metro Stations in Doha, Qatar. The Qatar Metro Station Area Planning (SAP) project has been developed by Qatar Rail and the Central Planning Office (CPO) of the former Ministry of Municipality and Urban Planning (MMUP), now the Ministry of Municipality and Environment (MME), in conjunction with the various stakeholders to prepare outline designs for thirty-five (35) of the metro stations that form Phase I of the Qatar Rail metro implementation project.
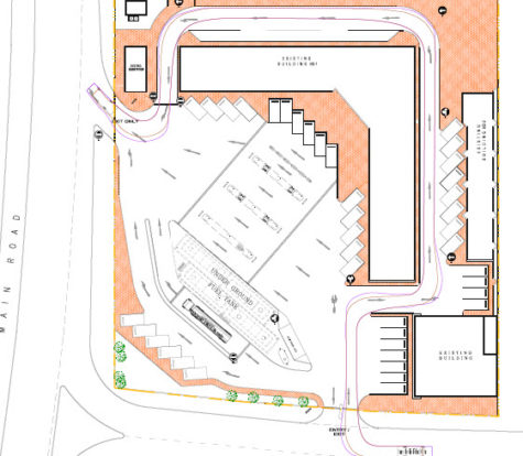
Swept Path Analysis for West Bay Petrol Station, Doha
Our Services
DCE were appointed by West Bay Petrol Station to conduct a Swept Path Analysis (SPA) and review of internal road layout. A redevelopment of the internal layout, as well as its connection to the external road network was proposed and a swept path analysis was required to assess the viability of the proposed circulatory layout for design vehicles as well as emergency vehicles.
Traffic Impact Study for Mercedes-Benz Service Centre Refurbishment, Industrial Area
Our Services
DCE were appointed by GHD to conduct a Traffic Impact Study (TIS) for a the refurbishment of NBKA Mercedes-Benz Service Centre in the Industrial Area. The proposed development involved a phased increase in operations at the existing NBKA Mercedes-Benz Service Centre. A limited scope TIS was carried out for this project focusing on the development plan review, existing parking problems for the surrounding area and a traffic survey. A detailed development plan review process was carried out to check access width, parking layout, internal / external vehicle and pedestrian circulation, sight distance and road safety.
Traffic Impact Study for Substation and Car Park, Doha
Our Services
DCE were appointed by Galfar Al Misnad to conduct a Traffic Impact Study (TIS) for a substation and multi-storey car park. The proposed development was envisaged to replace an existing substation in the area and also to help alleviate the parking problems in the area. A limited scope TIS was carried out for this project focusing on the development plan review, existing parking problems for the surrounding area and a traffic survey. A detailed development plan review process was carried out to check access width, parking layout, internal / external vehicle and pedestrian circulation, sight distance and road safety.
Road Safety Audit for People Mover System, Education City
Our Services
DCE were appointed by Siemens WLL to complete the Detailed Design (Stage 3) and Pre-opening (Stage 4) Audits for the People Mover System in Education City, Doha, Qatar. The People Mover System (PMS) is a tram line that will transport people around the area. The PMS system runs in three lines (Line 1, 2 and 3). There are 20 intersections with roads along the tram lines. The whole system runs from approximately 6:00am to 12:30am and the maximum speed of the trams is 40km/h. The scope of the audit only covered the PMS system provision. This primarily included the interaction between the PMS and the roads, and the NMU facilities in proximity to the stations. Where infrastructural items and the road layout adjacent did not have a direct impact on the tram line, such items were not reviewed.
Road Safety Audit for Manama Beach Front, Bahrain
Our Services
DCE were appointment to complete the Detailed Design (Stage 3) Audit for the Manama Beach Front in Bahrain.
Manama Beach Front is located on the northern coast of Manama, on the northern side of Road 4607. The scheme consists mostly of parking bays to service the beach. 2 roundabouts are provided within the scheme, and a turning heads are provided at each end.
Road Safety Audit for Madinat Khalifa, Bahrain
Our Services
DCE were appointment to complete the Preliminary Design (Stage 2) Audit for the Madinat Khalifa in Bahrain.
Madinat Khalifa is located on the east coast of Bahrain, between Jaw Village to the south and Asker Village to the north. The scheme is mainly residential, comprising of villas and apartments. Other land uses include mixed use/commercial development, educational institutions, Mosques and utility buildings.
On street parking is provided throughout the residential area, together with villas providing off-street parking.In addition, parking will be permitted along the Service Roads, along the Boulevards and Avenues.
New bus services will provide high quality public transportation network through the scheme. All bus stops are proposed to be accessible from 300m walking distance anywhere within the scheme. It is likely the operation of these bus routes will use the traditional method of the bus following an assigned route and schedule.
Pedestrian crossing points and walkways are planned at all intersections and throughout the scheme. A network of cycle routes have also been implemented and where possible are segregated from heavily trafficked routes.
Overall the development seeks to be a pioneer for other developments in Bahrain, to encourage the use of Public transport together with walking and cycling and reduce the reliance on the use of cars and other motorised vehicles. The existing site is currently vacant with limited residential development and construction ongoing to the north of the site. Currently the development site is serviced by a network of temporary roads.
Road Safety Audit for Orbital Expressway, Contract 1
Our Services
DCE were appointed by J&P to undertake multiple detailed design (stage 3) and pre-opening audits (Stage 4) on Contract 1 as part of the temporary traffic management for the Orbital Expressway programme.
This project is a 45 km new dual carriageway that includes four grade-separated interchanges. It is located to the South of Doha City and will connect Al Wakra – Mesaieed Highway and the New Doha Port to the East- West Corridor in the north, to Al Wakra Bypass in the east, and to the Orbital Highway in the west.
The detailed design (stage 3) and pre-opening audits (Stage 4) were carried out as part of the Orbital Expressway Beneficial Use opening.Road Safety Audit for Orbital Expressway, Contract 2
Our Services
[embed]https://www.youtube.com/watch?v=AO-plDUqnV8[/embed] DCE were appointed by QD-VC Bin Omran to undertake numerous preliminary design (Stage 2), detailed design (Stage 3) and pre-opening audits (Stage 4) on Contract 2 as part of the Orbital Expressway programme.
This project involves the construction of 47km of freeway from Salwa Road to North Relief Road and includes seven different grade-separate interchanges with cross roads, collectors-distributors, truck lanes, overpass and underpass structures, retaining walls, pedestrian and bicycle paths, traffic signs, ITS, landscape and hardscape and art scape, street lighting, all related infrastructures, etc.
As part of the Orbital Expressway Beneficial Use opening detailed design (Stage 3) and pre-opening (Stage 4) audits were carried out. As part of the Orbital Expressway permanent works preliminary design (Stage 2), detailed design (Stage 3) audits were carried out.Road Safety Audit for Orbital Expressway, Contract 3
Our Services
[embed]https://www.youtube.com/watch?v=IOPFL-8dvbs&t=218s[/embed] DCE were appointed by Leighton Contracting Qatar and Al Jaber Engineering JV to undertake numerous preliminary design (Stage 2), detailed design (Stage 3) and pre-opening audits (Stage 4) on Contract 3 as part of the Orbital Expressway programme.
This project involves the construction of 47km of freeway from Salwa Road to North Relief Road and includes seven different grade-separate interchanges with cross roads, collectors-distributors, truck lanes, overpass and underpass structures, retaining walls, pedestrian and bicycle paths, traffic signs, ITS, landscape and hardscape and art scape, street lighting, all related infrastructures, etc.
As part of the Orbital Expressway Beneficial Use opening detailed design (Stage 3) and pre-opening (Stage 4) audits were carried out. As part of the Orbital Expressway permanent works preliminary design (Stage 2), detailed design (Stage 3) audits were carried out.Road Safety Audit for Orbital Expressway, Contract 4
Our Services
[embed]https://www.youtube.com/watch?v=JQQYX1bTkPY[/embed] DCE were appointed by Daewoo to undertake numerous preliminary design (Stage 2), detailed design (Stage 3) and pre-opening audits (Stage 4) on Contract 4 as part of the Orbital Expressway programme.
This project involves the construction of approximately 40km of freeway from Dukhan Highway travelling north and then north eastwards to connect to the future Al Khor bypass Project 22.
As part of the Orbital Expressway Beneficial Use opening detailed design (Stage 3) and pre-opening (Stage 4) audits were carried out. As part of the Orbital Expressway permanent works preliminary design (Stage 2), detailed design (Stage 3) audits were carried out.Road Safety Audit for Samabad Development, Bahrain
Our Services
DCE were appointment to complete the combined Preliminary Design (Stage 2) and Detailed Design (Stage 3) Audit for the Salmabad Development in Bahrain.
The development, Salmabad is located to the north of country approximately 8km west of the city of Manama. The site is adjacent to the Sheikh Khalifa Bin Salman Highway. Bahrain International University is located east of the scheme with Ikea located to the south.
The infrastructure with respect to the proposed mixed-use development in Salmabad will be provided by Bareeq Al Retaj. The development is located adjacent to the Salmabad bypass in the Northern Governorate. The Salmabad area is seen as the next service and industry hub within Bahrain. The proposed development is located beside the intersection of Sheikh Isa Bin Salman Highway and Sheikh Khalifa Bin Salman highway. All the infrastructure services are to be provided within the site boundary, including provision for the connection to external government networks. It is the intention that all infrastructure such as roads and utilities are to be adopted by the authorities and to be designed to Bahrain standards.
Road Safety Audit for Khalifa Stadium, Doha
Our Services
[embed]https://www.youtube.com/watch?v=dloCOTo4c8s[/embed] DCE were appointed by QDC to complete the Concept Design (Stage 1) Audit for Khalifa Stadium in Doha.
Khalifa Stadium is located to the southwest of Doha City, approximately 15km South of Doha city centre. Villagio Shopping Mall and Aspire Sports Academy are located adjacent to the stadium. The stadium has a gross seating capacity of 40,000 spectators.
This audit specifically relates to the scheme during tournament mode. During tournament mode, different layers of transport strategies are required and will be primarily based on the requirements of different constituent groups e.g. VIPs, FIFA Referee's and Match Officials, Media, Taxis and General Spectators.
This master plan for tournament mode has been designed to satisfy the operational, logistical, security, media/broadcasters and other user groups which have a significant impact on the network.
Road Safety Audit for Diyar Homes Phase 2, Bahrain
Our Services
DCE were appointed to undertake detailed design (Stage 3) audits for Diyar Homes Phase 2, Bahrain.
Diyar Homes Development is located in the north eastern coast of the Kingdom of Bahrain. This report relates to Phase 2 of the development which is approximately 8ha in size. The scheme is a residential area with a playground and mosque in the centre. The internal road network consists of a number of cul-de-sacs and has a posted speed of 30kph. Raised pedestrian crossings have been provided through out.
There is a school immediately adjacent to the scheme on the east with a raised pedestrian crossing facility connecting the two areas.
Road Safety Audit for AMAS Islands Package 0 & 1, Bahrain
Our Services
DCE were appointment to complete the Pre-opening (Stage 4) Audit for Amas Package 0 and Package 1 in Bahrain. Al Madina Al Shamalas (AMAS) Islands are located in the north western coast of the Kingdom of Bahrain. Package 0 was approximately 1,278 ha.
The scheme is primarily a residential area with residential units constructed to the north and south of the scheme. The land through the centre of the scheme is mostly undeveloped, however the road network is constructed. The scheme consists of two primary dual-carriageway layout r oads with a number of signalised junctions and a posted speed of 40kph. There are a number of minor internal roads which have a number of raised junctions and a posted speed of 30kph.
Package 1 as approximately 1,139 ha.
The scheme was a primarily residential area with residential units constructed along the main through road. There was also a sewerage treatment plant located at the eastern end of the scheme. The scope of works included primary and secondary dual carriageway layout roads with posted speeds of 50kph and 40kph. The scheme also consists of five signalised junctions and two roundabouts. There are also two bridges within the scheme. One at the southwest tie-in location and the other along the centre of the main primary through road.
Traffic Impact Study for Al Azaab Markets, Qatar
Our Services
DCE were appointed by ACE Consulting Engineers to conduct a Traffic Impact Study (TIS) for four separate plots as part of the Al Azaab Markets in various locations around Qatar. The proposed developments were a commercial in nature. From the pre-initiation meeting discussions with MOTC, it was agreed that a development plan review only would be carried out for these plots based on the limited number of trips that was expected to be generated by these markets.. A detailed development plan review process was carried out to check access width, parking layout, internal / external vehicle and pedestrian circulation, sight distance, road safety, drop off/pick up and service vehicle provisions.
Road Safety Audit for Al Wakrah Stadium, Al Wakrah
Our Services
[embed]https://www.youtube.com/watch?v=ip2516r7b18[/embed] DCE were appointed by QDC to complete the Concept Design (Stage 1) Audit for Al Wakrah Stadium in Al Wakrah.
The proposed Al Wakrah Stadium is located to the west of Al Wakrah Town, approximately15km South of Doha city centre. It is bounded by Al Wukair road on north, Doha Expressway on south west side and proposed utility corridor to the east side. The stadium has a gross seating capacity of 46,036 spectators.
This audit specifically relates to the scheme during tournament mode. During tournament mode, different layers of transport strategies are required and will be primarily based on the requirements of different constituent groups e.g. VIPs, FIFA Referee's and Match Officials, Media, Taxis and General Spectators.
This master plan for tournament mode has been designed to satisfy the operational, logistical, security, media/broadcasters and other user groups which have a significant impact on the network.
Road Safety Audit for Qatar Pedestrian Crossing Master Plan
Our Services
DCE were appointed by Mott MacDonald to complete the Concept Design (Stage 1) Audit for the Qatar Pedestrian Crossing Master Plan. This project consists of 50 new pedestrian bridges being constructed throughout Qatar. The majority of the crossings are located in Doha City, with 2 located in Al Khor and 3 located in Al Wakra. There are 25 grade-separated crossings and 25 at-grade crossings. At some locations the crossings will be retrofitted into the existing road corridor and at other locations the crossings will be installed into the future road schemes. The crossing locations were visited by the audit team on several different days. The audit team did not analyse or study the locations for the crossings but rather the audit team have raised problems pertaining to the proposed crossing type where it was deemed the proposed crossing type had a safety concern.
Traffic Impact Study for Qatar National Museum - Transit Oriented Development, Doha
Our Services
DCE were appointed by Mangera Yvars Architects to conduct a Traffic Impact Study (TIS) for Qatar National Museum - Transit Oriented Development (TOD). The proposed development was a multi-use development which will consist of residential, commercial and lodging facilities. Due to the central location of the development as well as the proximity to the proposed metro station, a unique traffic study was undertaken. A detailed development plan review process was carried out to check access width, parking layout, internal / external vehicle and pedestrian circulation, sight distance, road safety, drop off/pick up and service vehicle provisions. Following TIS guidelines developed by the Ministry of Transport and Communications (MOTC), traffic was generated, distributed and assigned to the road network. A traffic impact assessment was done at key access roads and neighbouring junctions using PTV VISSIM SIDRA and Synchro software.
Road Safety Audit for Pedestrian Bridge, Al Mater Street
Our Services
DCE were appointed by Dorsch Qatar to complete the Detailed Design (Stage 3) Audit for the pedestrian bridge on Al Matar Street in Doha, Qatar. The pedestrian bridge is located on Al Matar Street, near Ooredoo Headquarters. It is between C-Ring (286m approx.) and D-Ring (440m approx.) road intersection with Al Matar Street. Commercial establishments like Qatar Airways Tower 1, 2 & 3, Ooredoo Headquarter-2 and Al Mana Tower are within 150m of the proposed pedestrian bridge. These commercial establishments are separated by Al Matar Street. An at-grade crossing was not chosen at this location due to the high operational speeds on Al Matar Street. The nearest pedestrian facility to cross Al Matar Street is about 250m west of proposed pedestrian bridge location. The audit only considered the new bridge and interaction with the surrounding roadway. It did not consider the existing road elements and layout.
Traffic Impact Study for The Avenues, Riyadh, Saudi Arabia
Our Services
DCE were appointed by EHAF Consulting Engineers to conduct the necessary traffic and transportation studies required by the Authorities in Riyadh. The project consisted of a Traffic Impact Study (TIS) for the proposed Mixed Use Development, ‘The Avenues Riyadh’ which will be located approximately 24km north of the centre of Riyadh in the Kingdom of Saudi Arabia. The overall development will consist of a 3 storey retail mall and five towers; one office tower, two 5 star luxury hotel towers, one 5 star convention hotel tower and a mixed use hotel / medical tower (clinic). The report was compiled to determine the extent of the traffic that is generated by the development and outline the distribution to and from the site and to see if the development can be accommodated within the existing and the planned road network or if additional improvements to the road network were necessary as a direct result of the developments.
Traffic Impact Study for Hypermarket, Um Salal
Our Services
DCE were appointed by Sketch Engineering Consultants to conduct a Traffic Impact Study (TIS) for a Hypermarket development in Um Salal. The proposed development was a commercial development in Um Salal. From the pre-initiation meeting discussions with MOTC, it was agreed that a full scope TIS would be carried out for this project based on the land use category ‘Superstore’ (from the Dubai Trip Generation and Parking Rates Manual 2013), which was deemed to be the most appropriate land use category. A detailed development plan review process was carried out to check access width, parking layout, internal / external vehicle and pedestrian circulation, sight distance, road safety, drop off/pick up and service vehicle provisions. Following TIS guidelines developed by the Ministry of Transport and Communications (MOTC), traffic was generated, distributed and assigned to the road network using PTV VISUM. A traffic impact assessment was done at key access roads and neighbouring junctions using PTV VISSIM SIDRA and Synchro software.
Road Safety Audit for Lusail Expressway, Lusail
Our Services
[embed]https://www.youtube.com/watch?v=lliFDbHeWY0[/embed] [embed]https://www.youtube.com/watch?v=4_Xnl9Dd2yY&t=1s[/embed] DCE were appointed by Hyundai to undertake several pre-opening audits (Stage 4) as part of the Lusail Expressway programme.
This project involved the construction of 3 major interchanges at the Pearl, Onaiza and Al Wahda. Each of these locations consisted of multi-grade interchanges with tunnels and flyovers.
The majority of the permanent works were complete; however there were still some sections that were temporary in nature, with some works left to complete so the pre-opening audit (Stage 4) was carried out as part of a TDP.
Traffic Modelling for FEED Zekreet, Ras Laffan
Our Services
DCE were appointed by Tecnicas Reunidas to perform traffic modelling and analysis for phase 2 of the FEED Zekreet project for Qatar Petroleum in Ras Laffan. The purpose of the study was to analyse the traffic during the constructions and operation of the facility. The road network included the movement of vehicles between Doha, via Khalifa Gate, and the development (external trips) and the movement of vehicles between RLIC labour camps and the development (internal trips). The traffic study identified any potential traffic related problems due to the new development and determined appropriate measures to mitigate the impacts of these problems.
Traffic Impact Study for SIDRA MRC, Education City
Our Services
DCE were appointed by WhiteYoung Qatar to conduct a Traffic Impact Study (TIS) for Seef Lusail in Lusail, Qatar. The proposed development was a medical centre in Education City which encompassed world class patient care, medi-cal education and biomedical research. Due to the central location of the development within Education City, a large study area was utilised. A detailed development plan review process was carried out to check access width, parking layout, internal / external vehicle and pedestrian circulation, sight distance, road safety, drop off/pick up and service vehicle provisions. Following TIS guidelines developed by the Ministry of Transport and Communications (MOTC), traffic was generated, distributed and assigned to the road network using PTV VISUM. A traffic impact assessment was done at key access roads and neighbouring junctions using PTV VISSIM SIDRA and Synchro software.
Road Safety Audit for Al Thumama Stadium, Doha
Our Services
[embed]https://www.youtube.com/watch?v=KGvQ2kPVGao[/embed] DCE were appointed by AEB to complete the Concept Design (Stage 1) Audit for Al Thumama Stadium in Doha.
The proposed Al Thumama Stadium is located approximately 6km from the Corniche of Doha City. The site is located between E and F ring roads and next to Al Quds Street. The stadium has a gross seating capacity of 40,000 spectators.
There were three traffic scenarios considered for the stadium: Day to day activity for the precinct with legacy built features, weekly matches between clubs, and major tournament matches at full capacity.
Road Safety Audit for Riyadh Metro, Saudi Arabia
Our Services
DCE were appointed by CWG to undertake combined preliminary/detailed design (stage2/stage 3) audits on Package 2 of Line 3 as part of the Riyadh Metro Project in The Kingdom of Saudi Arabia. The audit comprised an examination of the drawings and other information relating to the scheme supplied by the design office. The Audit was undertaken in accordance with the international best practice and reference to the Qatar Road Safety Audit Guidelines.
Road Safety Audit for Al Wakrah Bybass
Our Services
[embed]https://www.youtube.com/watch?v=aE7Bhz8pFv4[/embed] DCE were appointed by Larsen & Toubro to undertake the detailed design audits (Stage 3) for the full permanent works as well as several detailed design and pre-opening audits (Stage 4) as part of the TDP.
This project is an 11-km major south-north freeway connecting to the existing Al Wakra-Mesaieed Road to the East-West Corridor, just southwest of Wakra village. This new freeway is a continuation of an existing major urban north-south high speed corridor referred to as Doha Expressway.
Road Safety Audit for Rawdat Rashed Interchange, Dukhan Expressway
Our Services
[embed]https://www.youtube.com/watch?v=BOlV4r3j9OI[/embed] DCE were appointed by Parsons to undertake the preliminary design (Stage 2) and detailed design (Stage 3) for Rawdat Rashed Interchange as part of the Dukhan Expressway programme. DCE were appointed by CCC to undertake the pre-opening audit (Stage 4) for Rawdat Rashed Interchange.
This project involves the construction of a 4 level interchange with a ramp that provides entry to Mall of Qatar for westbound traffic on Dukhan Expressway and a tunnel for traffic exiting from the mall, heading eastbound from the mall basement parking.
The project extents, consist of the Design of a Modified partial Cloverleaf interchange, approximately 3,200m along Dukhan Road and 1300m along Celebration / Military Road. Design of Mall of Qatar exit tunnel approximately total length of 1500 meter (with 950m closed tunnel length). Design of the access viaduct to Mall of Qatar approximately 1,600 meters in length.
The preliminary design (Stage 2), detailed design (Stage 3) and pre-opening audits for Rawdat Rashed Interchange were undertaken as part of the permanent works.
Traffic Modelling for North Canal Crossing, Doha
Our Services
DCE were appointed by Hyundai to perform traffic modelling and analysis for the opening of the North Canal Crossing (NCC) Bridge. The purpose of the study was to outline the level of service achieved for the road network as a result of the opening of the NCC bridge. The proposed layout was anticipated to only be in place until the opening of the Lusail expressway so on-site traffic counts were utilised as the most appropriate flow volumes. The performance of the network was considered in the assessment in terms of delay, queue length etc. to ascertain the level of service. VISSIM was the software tool utilised for the study.
Traffic Impact Study for Souq Wakif Car Park, Doha
Our Services
DCE were appointed by Gharnata Consultant Engineers to conduct a Traffic Impact Study (TIS) for a new car park at the existing Souq Wakif development in Doha, Qatar. A detailed development plan re-view process was carried out to check access width, parking lay-out, internal / external vehicle and pedestrian circulation, sight distance, road safety, drop off/pick up and service vehicles movement. Following TIS guidelines developed by the Ministry of Transport and Communications (MOTC), traffic was generated, distributed and assigned to the road network using PTV VISUM. A traffic impact assessment was done at key access roads also. The development is located in the central business dis-trict of Doha, which height-ens the importance of the project due to the high vol-umes of traffic in the area. An emphasis is placed on the layout of access points and nearby junction analysis for a project such as this in order to ensure adequate tie-ins to an already busy network.
Traffic Impact Study for Al Wakrah Village Souq, Wakrah
Our Services
DCE were appointed by Ghar-nata Consultant Engineers to conduct a Traffic Impact Study (TIS) for a souk develop-ment in Al Wakrah, Qatar. A detailed development plan review process was carried out to check access width, parking layout, internal / external vehicle and pedestrian circulation, sight distance, road safety, drop off/pick up and service vehicle provisions. Following TIS guidelines developed by the Ministry of Transport and Communications (MOTC), traffic was generated, distributed and assigned to the road network using PTV VISUM. A traffic impact assessment was done at key access roads and neighbouring junctions using PTV VISSIM SIDRA and Synchro software.
Road Safety Audit for Roads surrounding Al Bayt Stadium, Al Khor
Our Services
[embed]https://www.youtube.com/watch?v=yazAqy6NBwE[/embed] DCE were appointed by KAWSP to complete the Concept Design (Stage 1), Preliminary Design (Stage 2) and Detailed Design (Stage 3) Audits for the roads surrounding Al Bayt Stadium in Al Khor. The QN090, project is part of Al Khor Town, is located approximately 50 km to the north of Doha City in Al Khor Municipality. The Roads Surrounding Al Bayt Stadium project limits covers around 35.82 ha of land area southwest of Al Khor Town. The existing land in QN090 area is vacant. The project covers the peripheral roads of proposed Al Khor FIFA stadium complex. The design speed of the roads is 60kph with a posted speed of 50kph.
Road Safety Audit for Khalifa Avenue, Education City
Our Services
[embed]https://www.youtube.com/watch?v=U2NwPh1cB4s[/embed] DCE were appointed by Dar Al Handasah to undertake the detailed design (Stage 3) for Khalifa Avenue as part of the Dukhan Expressway programme. DCE were also appointed by QD-SBG to undertake the pre-opening audit (Stage 4) for Khalifa Avenue.
In addition 750m of road north of Qatar Academy junction is part of the project and the Audit scope. There are 4 major junctions within the project limits as follows: Bani Hajer Junction - A roundabout currently exists at the Bani Hajer junction, providing connection between Khalifa Avenue and Al Rayyan Road. This intersection will be replaced by a free flow (half clover leaf) interchange. Qatar Academy Intersection (Khalifa Avenue / Qatar Academy North road) - This junction is named because of its close proximity to Qatar Academy but also provides access to the nearby Arab Museum of Art. Anat grade roundabout exists at this junction which will be replaced with a three lane hamburger roundabout and a left turn tunnel underpass in the north to east direction. Tilted Roundabout (Khalifa Avenue / Al Gharrafa Street) - The future Tilted Interchange gets its name from the existing, skewed at-grade roundabout that appears from an overhead view to be tilted. The Tilted interchange is strategically located to serve Education City and the Qatar National Convention Centre. Al - Wajbah Intersection – This existing grade separated junction will be tied into the western end of the scheme. It primarily consists of a large loop road with slip roads linking it to the mainline overhead. The loop road extends into a southern arm consisting of dual carriageway with an existing at grade junction and two roundabouts.
The detailed design (Stage 3) and pre-opening audits (Stage 4) for Khalifa Avenue were undertaken as a TDP.
Road Design for Barzan Hospital, Al Rayyan
Our Services
DCE were appointed by Gharnata Consulting Engineers to complete the road design for a medical building located in Al Rayyan, Qatar. The design included reviewing the proposed layout, examining the existing topographical plan, preparing a detailed site layout plan (including road geometry dimensions), longitudinal profiles, typical cross-sections, grading plans and pavement construction details.
Traffic Impact Study for Fareej Bin Derham Commercial Building, Doha
Our Services
DCE were appointed by Gharnata Consultant Engineers to conduct a Traffic Impact Study for the proposed commercial building adjacent to B-Ring Road, Doha, Qatar. The development comprises of commercial showrooms and offices. There are three underground parking levels proposed. Following TIS guidelines developed by the Ministry of Municipality and Urban Planning (MMUP), traffic was generated, distributed and assigned to the road network. A detailed development plan review process was carried out to check for access width, parking layout, internal/ external vehicle and pedestrian circulation, sight distance, road safety, drop off/ pick up and service vehicle provisions.
Traffic Impact Study for Um Salal School, Um Salal
Our Services
DCE were appointed by Sketch Engineering to conduct a Traffic Impact Study (TIS) for a school building located in Umm Salal, Qatar. A detailed development plan review process was carried out to check access width, parking layout, internal / external vehicle and pedestrian circulation, sight distance, road safety, drop off/pick up and service vehicle provisions. This project also involved car park and drop off design to provide enough space to comply with trips generated for this development. DCE coordinated with Ashghal Public Works Authority in the design of the external School Zone which was tied into the proposed site plan. The School Zone creates a safe area for the movement of large volumes of NMUs with the use of narrow trafficked lanes, one‐way traffic with central median and speed enforcement measures through the scheme in the form of roundabouts and raised tables. Following TIS guidelines developed by the Ministry of Transport (MoT), traffic was generated, distributed and assigned to the road network. Traffic Impact assessment was done at key access roads and neighbouring junctions using PTV VISUM, SIDRA and Synchro software.
Road Safety Assessment for Package 27, Doha
Our Services
DCE were appointed by Khatib & Alami to complete the Road Safety Assessment for Package 27. The report examined the road safety aspects of 3 options for the concept design (stage 1) of Package 27. The road safety assessment was a comparative assessment of the road safety implications of different scheme options. Road Safety Assessments require at their base some understanding and application of risk assessment techniques. This comparative assessment provided an opportunity to assess the safety implications of fundamental design principles. The opportunity to make comparative assessments makes Road Safety Assessments an ideal tool for use within early stages of design.
Road Safety Assessment for Package 26, Haloul Road
Our Services
DCE were appointed by Khatib & Alami to complete the Road Safety Assessment for Haloul Road. The report examined the road safety aspects of 3 options for the concept design (Stage 1) of Package 26. The road safety assessment was a comparative assessment of the road safety implications of different scheme options. Road Safety Assessments require at their base some understanding and application of risk assessment techniques. This comparative assessment provided an opportunity to assess the safety implications of fundamental design principles. The opportunity to make comparative assessments makes Road Safety Assessments an ideal tool for use within early stages of design.
Pedestrian Modelling for SECP - Concourse Link, Education City
Our Services
DCE were appointed by Shapoorji Pallonji as the consultant to review a Pedestrian modelling study carried out previously. As part of the study DCE were to validate the underground concourse link design. The underground concourse link connects the basement of the South East Car Park (SECP) with the Qatar Railway Metro Underground Access Box at Education City. The concourse link connects the proposed Q Rail Station with Education City's People Mover System (PMS), multilevel car park building and bus concourse. As part of the study, DCE completed the following tasks:
- To review previous Pedestrian Modeling Study and validate the underground concourse link design
- Assess the capacity of the concourse walkway
- Assess the capacity constraints at critical points along the concourse area
- Assess the Level of service(LOS) of Queuing areas at Ticket Vending Machines (TVM), Ticket Counters (TC) and Turnstiles
- Where ever the acceptable LOS (B/C) has not been met, mitigation measures have to be proposed to improve the LOS
Waad Al Shamal City, Turaif, Saudi Arabia
Our Services
DCE were appointed by Saudi Consolidated Engineering Company - Khatib & Alami to undertake a detailed design (stage 3) audit on Waad Al Shamal City, Turiaf in The Kingdom of Saudi Arabia. The project is located near the northern border of KSA, approximately 15km from Turaif. The Road Safety Audit examined Roads 7, 12 and 19 in the Industrial Zone. Road 7 was approximately 17km long, Road 12, 11km long and Road 19, 7km long. Road 7 connected to Highway 85 between Turaif and Arar. The Detailed Design Stage Audit was been carried out in accordance the British Highways Agency Standards: “Highways Design Manual for Roads & Bridges Volume 5, Assessment and Preparation of Road Schemes Section 2 – Part 2 – Road Safety Audit HD 19/03”.
Road Design for Workers Hospital, Industrial Area
Our Services
DCE were appointed by Gharnata Consulting Engineers to complete the road design for a medical facility located in the Industrial Area, Qatar. The design included reviewing the proposed layout, examining the existing topographical plan, preparing a detailed site layout plan (including road geometry dimensions), longitudinal profiles, typical cross-sections, grading plans and pavement construction details.
Traffic Impact Study for Waad Al Shamal City, Saudi Arabia
Our Services
DCE were appointed by RGCK to complete Traffic Impact Study for Phase 1A of Waad Al Shamal City Development which is located approximately 25km north east of Turaif in the Kingdom of Saudi Arabia. The purpose of the report was to verify that the proposed road network within the development can accommodate the expected number of vehicles expected to be generated by the development, and if needed, recommend measures that are necessary to mitigate any adverse impacts. The analysis includes an estimation of site-generated vehicle trips and an operational analysis of the relevant junctions and links throughout. The traffic study was produced to aid the review/approval process for the design of the proposed road network and junctions which were being developed as part of Phase 1A.
Traffic Impact Study for Logistics Village, Al Wukair
Our Services
DCE were appointed by GEIC to conduct a TIS (Traffic Impact Study) for an industrial logistics village development in Umm Al Aweena. The development comprises of industrial, commercial, residential, administration, and retail areas. There are 335 car parking spaces and 502 LGV/HGV parking spaces available on‐site. Following TIS guidelines developed by the Ministry of Municipality and Urban Planning (MMUP), traffic was generated, distributed and assigned to the road network. Levels of Service (LOS) at selected junctions and links within the study area were analysed in order to gain a better understanding of the traffic / transportation and capacity issues. After completion of the analysis, appropriate measures were proposed to improve the performance of the road network. PTV traffic software analysis packages, VISUM and VISSIM were used to conduct this analysis.
Traffic Impact Study for Stand Alone Health Centre, Industrial Area
Our Services
DCE were appointed by Gharnata Consultant Engineers to conduct a Traffic Impact Study for the proposed Stand Alone Health Care Centre, Doha, Qatar. The development comprises of Ambulatory care, clinics, support, health centre and ancillary buildings such as mosque, canteen and utility area. There are total of 112 parking spaces available onsite. Following TIS guidelines developed by the Ministry of Municipality and Urban Planning (MMUP), traffic was generated, distributed and assigned to the road network. Parking spaces are found to be inadequate and parking management measures are proposed. A detailed development plan review process will be done to check for access width, parking layout, internal/ external vehicle and pedestrian circulation, sight distance, road safety, drop off/ pick up and service vehicle provisions. Levels of Service (LOS) at selected junctions and links within the study area will be analysed using SIDRA, SYNCHRO and HCS to identify the traffic impact.
Traffic Impact Study for Workers Hospital, Industrial Area
Our Services
DCE were appointed by Gharnata Consultant Engineers to conduct a Traffic Impact Study for the proposed Workers’ Hospital, Doha, Qatar. The development comprises of Integrated health centre and Workers’ hospital. There are total of 212 parking spaces available on‐site. Following TIS guidelines developed by the Ministry of Municipality and Urban Planning (MMUP), traffic was generated, distributed and assigned to the road network. Parking spaces are found to be inadequate and parking management measures are proposed in liaison with Municipality. A detailed development plan review process will be done to check for access width, parking layout, internal/ external vehicle and pedestrian circulation, sight distance, road safety, drop off/ pick up and service vehicle provisions. Levels of Service (LOS) at selected junctions and links within the study area will be analysed using SIDRA, SYNCHRO and HCS+ to identify the traffic impact.
Traffic Impact Study for Commercial Development, Airport Road
Our Services
DCE were appointed by CICO Consulting Engineers to conduct a TIS (Traffic Impact Study) for the Commercial Development at Airport Road, Doha, Qatar. The proposed G+2 development comprises of car showroom, commercial showroom and offices. There are total of 385 parking spaces available on‐site. Following TIS guidelines developed by the Ministry of Municipality and Urban Planning (MMUP), traffic was generated, distributed and assigned to the road network. Parking spaces are found to be adequate. A detailed development plan review has been done to check for access width, parking layout, internal/ external vehicle and pedestrian circulation, sight distance, road safety, drop off/ pick up and service vehicle provisions. Levels of Service (LOS) at selected junctions and links within the study area will be analysed to identify the impact of proposed development on the existing intersection. If required, mitigation measures will be proposed to improve LOS.
Traffic Impact Study for Premier Inn Hotel, Education City
Our Services
DCE were appointed by Premier Inn Hotels LLC to conduct a TIS (Traffic Impact Study) for Premier Inn Hotel in Education City, Doha, Qatar. The development comprises of 219 bed room units, Gymnasium, Restaurant and Cafeteria. There are total of 100 parking spaces available on‐site. Following TIS guidelines developed by the Ministry of Municipality and Urban Planning (MMUP), traffic was generated, distributed and assigned to the road network. Parking spaces are found to be adequate. A detailed development plan review process has been done to check for access width, parking layout, internal/ external vehicle and pedestrian circulation, sight distance, road safety, drop off/ pick up and service vehicle provisions. Levels of Service (LOS) at selected junctions and links within the study area were analysed to check the impact of the proposed development on the surrounding development.
Traffic Impact Study for Labour City, Mesaimeer
Our Services
DCE were appointed by GHD as sub consultants to conduct Road Safety Audit and transport study (Strategic Modelling and traffic impact assessment) for Labour City in Mesaimeer, Doha. The development comprises of two phases. Phase 1 of Shopping Complex and Sporting Facilities and Phase 2 of residential buildings and communal facilities for an estimated 71,000 labourers. Shopping complex consist of supermarket, restaurants, cinemas and an amphitheatre; Sports facilities includes a cricket stadium, tennis courts, basketball courts, football field and cricket practice pitches. The provided parking space is for up to 2,939 vehicles and 377 buses. Following TIS guidelines developed by the Ministry of Municipality and Urban Planning (MMUP), a detailed traffic impact study is done. PTV VISUM , PTV VISSIM, HCS+, Synchro and SIDRA were used to conduct the traffic impact study.
Traffic Impact Study for Slaughterhouse, Al Wukair
Our Services
DCE were appointed by ACE to conduct a TIS (Traffic Impact Study) for a slaughterhouse development in Umm Al Aweena. The development comprises of industrial, commercial, residential, livestock holding, and office and retail areas. There are 1,769 parking spaces in total within the development. Following TIS guidelines developed by the Ministry of Municipality and Urban Planning (MMUP), traffic was generated, distributed and assigned to the road network. Levels of Service (LOS) at selected junctions and links within the study area were analysed in order to gain a better understanding of the traffic / transportation and capacity issues. After completion of the analysis, appropriate measures were proposed to improve the performance of the road network. PTV traffic software analysis packages, VISUM and VISSIM were used to conduct this analysis.
Traffic Impact Study for Palestinian School, Mesaimeer
Our Services
DCE were appointed by MZ and Partners to conduct a TIS (Traffic Impact Study) for a Palestinian School development in Mesaimeer, Doha. The development comprises of kinder Garden, Primary and Secondary School. There are 150 parking spaces (including short term and long term) available onsite. Following TIS guidelines developed by the Ministry of Municipality and Urban Planning (MMUP), traffic was generated, distributed and assigned to the road network. Parking spaces are found to be too low and special parking management and operational management measures were proposed. Level of Service (LOS) at selected junctions and links within the study area will be analysed in order to gain a better understanding of the traffic / transportation and capacity issues. After completion of the analysis, appropriate measures will be proposed to improve the performance of the road network. PTV VISUM, PTV VISSIM and SYNCHRO were used to conduct this analysis.








































































































